Attic Loft
Attic Lofts is a refined exploration of compact living, where clarity of structure and warmth of material come together in a quiet, deliberate composition. The building is intended to scribe to the site’s landscape features resulting in unification of the built form and natural topography.
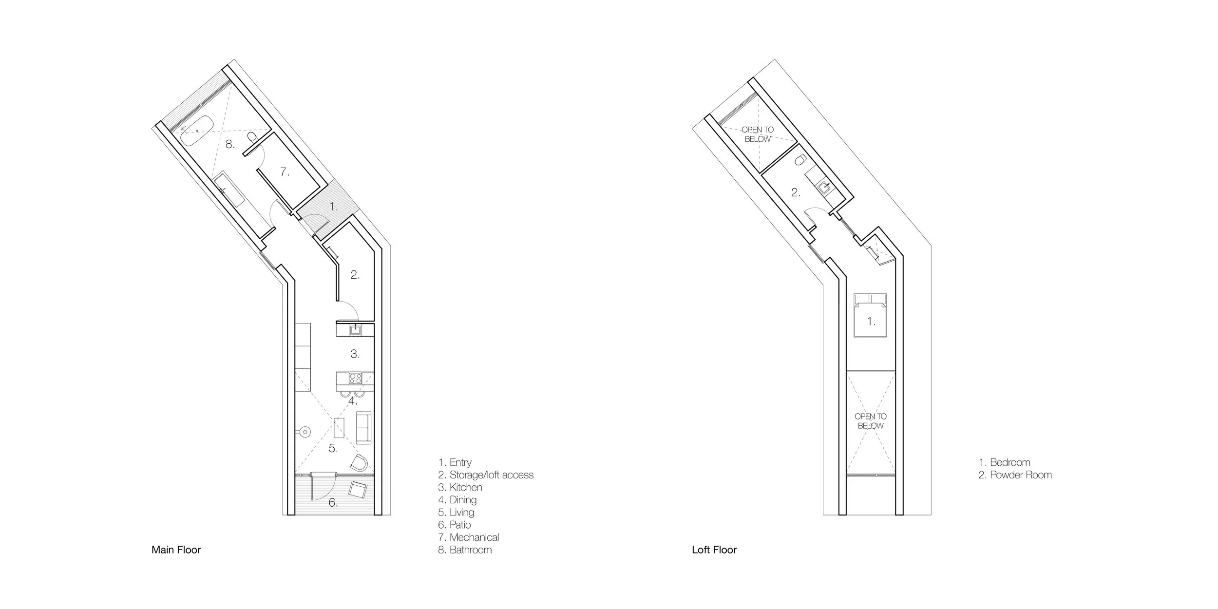
As the form and structure bays coincide, the rhythmic nature of the steel rigid frames offers spatial divisions that delineate the internal spaces. The cranked floor plan creates a hierarchy that separates the two resulting spaces including a large public gathering spaces and the more intimate private spaces. With an overall gross floor area of about 1250 square feet, the spaces within the Attic Loft are carved beneath sloped rooflines, where ceilings rise and compress to create moments of intimacy and openness.
Daylight is central to this model where apertures are strategically placed to allow light deep into the plan, animating surfaces throughout the day and reinforcing a connection to the surrounding landscape. The sleeping loft is conceived as a flexible living environment, where built-in elements and minimal partitions allow for adaptability without sacrificing spatial clarity.
Like all our models, the interior and exterior material finishes are versatile and adaptable to each local building culture ensuring simple construction practices and affordability. The Attic Loft model presents an architecture that is quietly expressive, rooted in context, and attuned to the rhythms of everyday living.
To learn more about the process, contact us today
Overview
1 - Bedroom in Loft
1.5 - Bathrooms
Dining + Kitchen + Living
Primary Dimensions: 16 feet x 78 feet (both sides of crank)
Gross Floor Area: 1250 sq.ft.
Main Floor Area: 810 square feet
Loft Floor Area: 295 square feet
Exterior Patio Area: 105 square feet
Details
In-floor Heating Compatible
Expansive Glazing Bringing Nature Indoors
Bedroom Loft Space
Finishes
Exterior: Multiple Options Available - Black Standing Seam Metal + Wood + other
Floors: Multiple Options Available - Polished Concrete Depicted + Hardwood + other
Interior Walls: Multiple Options Available - White Oak + Maple + Drywall + other

